双人字拼花木地板
安装指示

C 11.0

 

C 11.0

 


图-1
双人字拼花木地板

般信息

Junckers 双人字拼花木地板(图-2)是从传统的人字拼地板启发出来的。

每块拼花地板由两行木条组成。一行是完整长度的木条而另外一行是两条半长的木条。这样就得到一个有趣的图案。

此文件描述使用上述的拼花木块安装人字拼图。然而拼花木块是分成右边和左边被送递的。所以,无限的花式图案可以通过想像力制作。从图-2可以看到左边的和右边的拼花木块的分别。

图-2
双人字拼花木地板

木块尺寸


厚度 x 宽度 x 长度

- 14 x 129 x 516.6 毫米
- 22 x 129 x 516.6 毫米

 

Junckers双人字拼花木块在工厂通过了全面的质量控制程序。然而,在安装之前和期间检查错误和缺陷也非常重要。

Junckers双人字拼花实木地板已经在工厂完成,并且可以在安装后马上使用。

如果拼花木块被使用粘贴安装,需要24小时后才能投入使用。

包装上会清楚标示有关木块是左边的或是右边的拼花木块。


现场接收木地板

在运送双人字拼花木地板之前,建筑物內的相对湿度必须在使用时预期的相对湿度范围內,例如35 - 65%,而温度必须在20。C左右。

如果不能达到上述温度和相对湿度水平,我们要求您在发货前联系Junckers。

木块应在安装开始前1或2天送达。

有关木块必须保持包裹,直到开始安装,其重点是尽量保持拼花木块接近生产时的条件。


环境条件

为了使木地板与湿度相关的活动保持在最低限度,相对湿度应该在较长时间內保持稳定。

其湿度范围,即一年中最低和最高的相对湿度差值,不应该超过25至30%点数。

湿度范围的例子如: 25 -50%,35 -65%RH。以下的指引是根据35 -65%RH范围。

如果现场情况与上述有所不同,建议联系Junckers技术服务部并提出咨询。


在安装木地板前

建筑物必须干燥和防水。在供暖季节,供暖系统必须已经安装、完成测试和进行运作。

浇注混凝土、水泥找平面和其他可以带来湿度的室内工程,如舖瓷砖、批挡和油漆,都必须完成。


地板下供暖

在地板下供暖的木地板要求其采暖的温度分布均匀,而且木地板的表面温度不得超过27。C。

在开始安装之前,必须关闭地暖2天。安装完成后,每隔1天将地暖温度缓慢提升最多5。C。

但是,使用胶水的施工温度必须至少为15。C。

在采暖季节,通过使用地板下采暖作为热源,在地板木块之间的自然缝隙要比从散热器供暖的比较稍微大一些。

当安装双人字拼花木块直接在有地下供暖的混凝土时,建议使用22毫米厚的拼花木块。


底层地面

般信息:

拼花木块可以用镙钉、钉子和胶粘在胶合板/原有的木地板,也可以用镙钉和胶粘在刨花板上。此外,它们可以胶粘在混凝土或已找平的地面上。

在安装拼花木块前,所有类型的地面必须把污垢和油脂清洗干净。

木质地面的湿度含量不得超过12%。对于混凝土/已找平的地面,其湿度含量不得超过75%RH。

当使用镙钉和钉子的时候,要在木质地面和与拼花木块之间插入1张每平方米500克的卡纸板,以减少拼花木块与木质地面之间的吱吱响声。

每件拼花木块都用至少2颗钉子/镙钉以45。角用隐藏的方式钉牢。如果用镙钉和钉子去固定木块,建议使用22毫米厚的拼花木块。这是为了考虑公榫的强度。

固定在底层地面积

22毫米拼花木块

  • 钉子:使用射钉枪配Junckers J-钉 或45毫米T-钉。
  • 镙钉:需要预钻孔,用45毫米的Monta-Flex镙钉。
  • 胶粘:Junckers地板胶。

14毫米拼花木块

  • 胶粘:Junckers地板胶。

双人字拼花木块的公榫和母槽不得用胶粘。

但是短于100毫米的木块可以作为例外情况,如靠墙和边框最后两排之间的端头位置。

如果木地板的安装设计有边框,请参阅章节“边框装饰“。

现有的木地板地面:

拼花木块的铺设应使其纵向垂直于现有的木地板。为了达到正确的表面平整度,可以把不少于15毫米厚的胶合板铺装在现有的木地板上。

如果使用胶合板,可以使用原有的铺装方向。重要的是确保原有的木地板已经妥善固定而且不会产生刺耳的声音。

胶合板:

`以胶合板为底层必须至少19毫米厚并且其龙骨间距为520毫米。如果胶合板是铺装在原有的木质基层上,可以使用15毫米的胶合板。

若采用公榫和母槽拼接的胶合板为底层,必须按照生产商的说明做好粘贴。

刨花板:

可以使用22毫米厚地板级别的刨花板并且其龙骨间距不能大于600毫米。如果刨花板是铺装在原有的木质地面上,它必须是不少于16毫米并且得到批准的刨花板。

有关的板材必须按照生产商的说明在公榫与母槽的位置做好粘贴。

混凝土/找平地面

在安装木地板之前,必须确保混凝土或找平地面的相对湿度不超过75%RH。

当安装在有地暖的混凝土或找平地面,其相对湿度必须不超过65%RH。在安装的过程中必须关闭地暖系统。

如果混凝土或找平地面的相对湿度高于上述数值,地板安装必须推迟或使用高效能的防潮材料,例如:Junckers液体防潮膜 - 它可以使用于相对湿度达到95%的地层。

以Junckers地板胶粘贴木地板,使用Junckers带痕的抹胶刀(J-11型)。以45。握住抹胶刀,把一边标记“2”的向下。每平方米的使用量约为0.5公升,视乎有关地面的吸收能力、结构和平整度。

涂胶的分量取决于在20分钟內能够铺装的木块数量。

在铺设拼花木块之前,使用2米长的直尺检测,地面的任何部分必须平整达到公差不多于3毫米的缝隙。

有关地面必须光滑无粗糙。现场不规则之处必须平整。


10板测量法则 - 其他图案模式

当温度和湿度变化时,木地板会轻微收缩/膨胀。因此,当双人字拼花地板的木块以平行模式进行大面积安装,例如:梯子模式,有必要按照10板测量法则进行安装。

10板测量法则是表示全年最潮湿时期10块木地板的预算宽度。

Junckers双人字拼花木块在预期相对湿度于35至65%之间与室内温度在18 - 22。C之间,其10块木地板的宽度为:129.2 - 129.4厘米。

如果有任何问题,请与Junckers联系。


墙壁间距与伸缩缝隙

为了让木地板自然移动,必须对墙壁和固定装置预留缝隙。对于宽与长不超过12米的跨度,其缝隙为12毫米。

以后每米增加0.5毫米。

例如:1个30米宽/长的面积:12毫米 +(18 x 0.5)= 21毫米。

建议在以下情况建立伸缩缝隙:具有特别大的地板面积而且受温度和湿度变化较大的条件所影响、或地板由房门自然划分等。

此外,如果木地板使用粘贴铺装,建筑物地面任何的结构性移动接口都必须同步移送到木地板上。

安装 - 第1部分

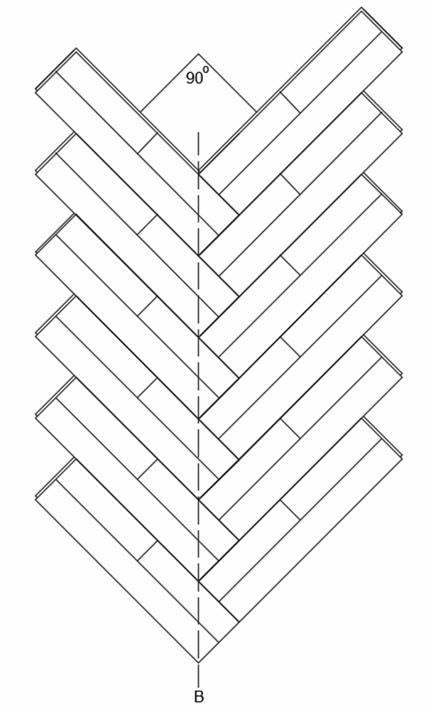
房间里的两条中心线(A与C线)可以用粉笔或细绳相互交错形成90。的标记。

在中心线左侧45毫米处,用细绳或粉笔划上1条工作线。


安装 - 第2部分

木块的边角必须与工作线(B线)一致。

为了调节起始排的铺设方向,可将中心线(C线)分别作为左右木块边角的调节线(见图)。

左边的木块铺设在左边而右边的木块铺设在右边。


安装 - 第3部分

在整个安装阶段,重要的是要确保左右木块形成的夹角为90。。

尤其是在起始的两排木块(这两排必须先铺满整个房间),重要的是要确保这两排木块所形成的所有夹角完成全是90。。

安装 - 第4部分

当完成起始两排木块的铺装,建议在继续进行其他木块安装前,让起始两排木块的胶水用1个晚上去干燥。

不要忘记把地面上多余的胶水擦掉。

建议在铺设的过程中不断的在木块上加载重量,以确保木块与地面的良好结合。一些施工队使用未开包的地板或未开封的胶水桶去达到加载重量的目的。


安装 - 第5部分

当起始两排木块的胶水干燥后,可以继续铺装其他木地板。

必须把握涂胶的分量相等于在20分钟內能够铺装的木块数量。


安装 - 第6部分

如果木块碰到边界或墙壁需要切割后而少于100毫米长,木块的公榫与母槽可以作为例外地用胶水连接。

边框装饰 - 第1部分

木地板可以用同一木种的地板漂亮地做成边框需要或用其他木种以获得更多对比。

如果木地板要在墙边安装边框,必须按照有关边框的计划宽度与指定的墙壁间距进行切割,例如:2 x 木块宽度 + 墙壁间距。

举例 - 用2件拼花木块做边框:
2 x 129毫米 + 12毫米为空间 = 270毫米


边框装饰 - 第2部分

为了能够将边框连接到新铺装的木地板,使用木工锣机在木地板的边缘切割形成母槽。

有关母槽的厚度必须与木块的公榫相配,并与木地板的表面保持一定的距离以确保能够避免两者的落地偏差。


边框装饰 - 第3部分

将边框的木块切割为斜切角,同时在木块边做成母槽以安装嵌入榫式条。

边框装饰 - 第4部分

然后,用在边框的木块可以粘贴在木地板的旁边。

建议在铺设的过程中不断的在木块上加载重量,以确保木块与地面的良好结合。

一些施工队使用未开包的地板或未开封的胶水桶去达到加载重量的目的。

keyboard_arrow_up



picture_as_pdf